Тоттенхэм
| Общая площадь | 200.8 м² |
| Размер дома | 12.9x13.5 м |
| Этажность | 2 эт |
| Спален | 4 |
| Санузлов | 3 |
| Утепление | 150мм |
| Срок возведения | 3 мес* |
- Комплектация
- Фундамент
|
Комплектация каркасного дома (можно вносить изменения по вашим пожеланиям) |
Внешний контур | Теплый контур | ЗИМА |
|---|---|---|---|
| Цена сейчас | 4 255 550 | 4 975 720 | 6 547 000 |
| Цена в ипотеку с эскроу-счетом | 4 893 883 | 5 722 078 | 7 529 050 |
| Фундамент
в подарок!
|
|||
| Забивные железобетонные сваи 150х150х3000 | |||
| Металлический оголовок, 250*250мм на каждую сваю | |||
| Гидроизоляция между сваей и обвязкой - рубероид | |||
| Цокольное перекрытие | |||
| Нижняя обвязка - Брус 150х150мм | |||
| Лаги пола - доска 50х200мм (камерной сушки) | |||
| Утепление - 200мм (минерало-ватный утеплитель) | |||
| Финишное покрытие - фанера 21мм | |||
| Несущие стены | |||
| Каркас внешних стен - 35х140мм камерной сушки, с шагом 580мм | |||
| Утепление плитное - 150мм (минерало-ватный утеплитель) | |||
| Внешняя отделка - профлист 0,45мм | |||
| Внутренняя отделка - имитация бруса | |||
| Внутренние перегородки | |||
| Каркасные 35х90мм / 35х140мм камерной сушки (по проекту) | |||
| Утепление - 100мм / 150мм* минерало-ватный утеплитель (*по проекту) | |||
| Внутренняя отделка - имитация бруса (стены) | |||
| Высоты | |||
| Высота 1-го этажа - 2,5м | |||
| Высота 2-го этажа - 2,5м | |||
| Кровля | |||
| Стропило 45х190мм камерной сушки | |||
| Утепление - 200мм (минерало-ватный утеплитель) | |||
| Обрешетка - 20х90мм | |||
| Контр-обрешетка - 40х40мм по ветрогидроизоляции | |||
| МЕТАЛЛОЧЕРЕПИЦА 0.5мм (цвет на выбор)
в подарок!
|
|||
| Лестница чердачная DÖCKE / FACRO (при наличии ХЧП)*** |
|||
| Пленки | |||
| ИЗОСПАН AQ PROFF / KNAUF Extra (или аналоги) гидро-ветрозащитная паропроницаемая усиленная мембрана | |||
| ИЗОСПАН RS (или аналоги) / KNAUF Extra армированная паро-гидроизоляция | |||
| Проклейка пленок скотчем | |||
| Ревизионный люк на чердак | |||
| Окна
в подарок!
|
|||
| Оконные конструкции ПВХ (Rehau/Veka) | |||
| 2-х камерный стеклопакет (3 стекла)** | |||
| Цвет – белый | |||
| Установка водоотливов под окнами | |||
| Двери | |||
| Входная одностворчатая ПВХ с двухкамерным стеклопакетом | |||
| Межэтажная лестница | |||
| Двухмаршевая с точеными балясинами | |||
| Перила | |||
| Ступени готовые | |||
| Оплата | |||
Поэтапная:
|
|||
| Гарантия | |||
| 15 лет* (полное атисептирование каркаса) | |||
| Технический надзор | |||
| на протяжении всей стройки | |||
| Сборка и доставка | |||
| Сборка домокомплекта на участке | |||
| Доставка материала 100 км от МКАД | |||
| Разгрузка материала | |||
| Бытовка для проживания рабочих | |||
| Биотуалет для рабочих | |||
| Провекрка дома АэроОкном | |||
| * обязательным условием для получения гарантии 15 лет - оплата
полного атисептирования каркаса **количество камер стеклопакета, зависит от геометрии и параметров изделий ПВХ ***холодное чердачное помещение |
|||
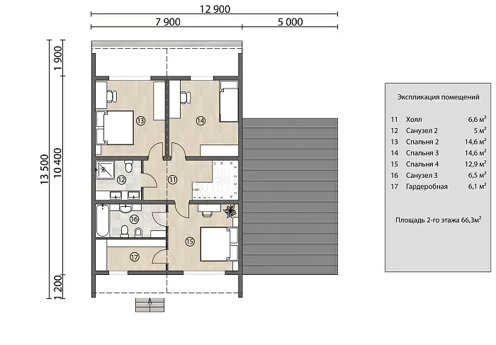
Дом «Тоттенхэм» для круглогодичного проживания с оригинальным фасадом и пристройкой – выполняет функции гаража, мастерской и бойлерной. Вынесенный блок технических помещений сообщается с жилым пространством через дверь. Здание имеет два отдельных входа, к которым примыкает терраса. Предусмотрена возможность выделения «дневной» и «ночной» зоны на 1 и 2 этаже соответственно.
Коротко об особенностях планировки
Общая площадь – 200,8 м², внешние размеры – 12.9x13.5 м. Большая часть первого уровня отведена под просторную кухню-гостиную, а также здесь имеется жилая комната, холл, с/у и гардеробная. Центральная входная дверь ведет в соединительный тамбур, который обеспечивает сохранение тепла. На втором этаже находятся четыре спальни и два санузла. Одно помещение обособленно по отношению к другим за счет соединения с собственной ванной и гардеробной. Интересные проекты можно найти среди домов из бруса 7х8.
Почему вам стоит отдать заказ именно нам?
- Оказываем услуги по возведению деревянных домов с 2004 года.
- Гарантия качественного исполнения заказанного проекта.
- Каждый клиент получает персональное коммерческое предложение.
- Неукоснительно соблюдаем заявленные сроки строительства.
Если обобщить, то мы готовы и можем работать на положительный результат с учетом всех пожеланий заказчика в части внесения корректировок в представленный проект. За более подробной информацией по интересующим вопросам обращайтесь на контактный номер телефона.










