Матон
| Общая площадь | 109.7 м² |
| Размер дома | 8.4x12.3 м |
| Этажность | 1 эт |
| Спален | 3 |
| Санузлов | 1 |
| Утепление | 150мм |
| Срок возведения | 2 мес* |
- Комплектация
- Фундамент
|
Комплектация каркасного дома (можно вносить изменения по вашим пожеланиям) |
Внешний контур | Теплый контур | ЗИМА |
|---|---|---|---|
| Цена сейчас | 2 885 240 | 3 394 400 | 4 243 000 |
| Цена в ипотеку с эскроу-счетом | 3 318 026 | 3 903 560 | 4 879 450 |
| Фундамент
в подарок!
|
|||
| Забивные железобетонные сваи 150х150х3000 | |||
| Металлический оголовок, 250*250мм на каждую сваю | |||
| Гидроизоляция между сваей и обвязкой - рубероид | |||
| Цокольное перекрытие | |||
| Нижняя обвязка - Брус 150х150мм | |||
| Лаги пола - доска 50х200мм (камерной сушки) | |||
| Утепление - 200мм (минерало-ватный утеплитель) | |||
| Финишное покрытие - фанера 21мм | |||
| Несущие стены | |||
| Каркас внешних стен - 35х140мм камерной сушки, с шагом 580мм | |||
| Утепление плитное - 150мм (минерало-ватный утеплитель) | |||
| Внешняя отделка - имитация бруса | |||
| Внутренняя отделка - имитация бруса | |||
| Внутренние перегородки | |||
| Каркасные 35х90мм / 35х140мм камерной сушки (по проекту) | |||
| Утепление - 100мм / 150мм* минерало-ватный утеплитель (*по проекту) | |||
| Внутренняя отделка - имитация бруса (стены) | |||
| Высоты | |||
| Высота 1-го этажа - 2,5м | |||
| Высота 2-го этажа - 2,5м | |||
| Кровля | |||
| Стропило 45х190мм камерной сушки | |||
| Утепление - 200мм (минерало-ватный утеплитель) | |||
| Обрешетка - 20х90мм | |||
| Контр-обрешетка - 40х40мм по ветрогидроизоляции | |||
| МЕТАЛЛОЧЕРЕПИЦА 0.5мм (цвет на выбор)
в подарок!
|
|||
| Лестница чердачная DÖCKE / FACRO (при наличии ХЧП)*** |
|||
| Пленки | |||
| ИЗОСПАН AQ PROFF / KNAUF Extra (или аналоги) гидро-ветрозащитная паропроницаемая усиленная мембрана | |||
| ИЗОСПАН RS (или аналоги) / KNAUF Extra армированная паро-гидроизоляция | |||
| Проклейка пленок скотчем | |||
| Ревизионный люк на чердак | |||
| Окна
в подарок!
|
|||
| Оконные конструкции ПВХ (Rehau/Veka) | |||
| 2-х камерный стеклопакет (3 стекла)** | |||
| Цвет – белый | |||
| Установка водоотливов под окнами | |||
| Двери | |||
| Входная одностворчатая ПВХ с двухкамерным стеклопакетом | |||
| Оплата | |||
Поэтапная:
|
|||
| Гарантия | |||
| 15 лет* (полное атисептирование каркаса) | |||
| Технический надзор | |||
| на протяжении всей стройки | |||
| Сборка и доставка | |||
| Сборка домокомплекта на участке | |||
| Доставка материала 100 км от МКАД | |||
| Разгрузка материала | |||
| Бытовка для проживания рабочих | |||
| Биотуалет для рабочих | |||
| Провекрка дома АэроОкном | |||
| * обязательным условием для получения гарантии 15 лет - оплата
полного атисептирования каркаса **количество камер стеклопакета, зависит от геометрии и параметров изделий ПВХ ***холодное чердачное помещение |
|||
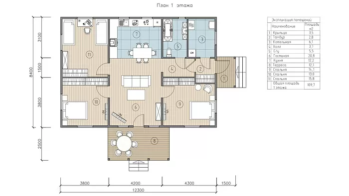
Одноэтажный каркасный дом Матон с уютной террасой и котельной включает в себя все, что нужно для жизни круглый год. Площадь 109,7 кв. м позволяет расположиться с комфортом семье из нескольких человек.
Конструктивные особенности и планировка Матон
Внешне дом с двускатной крышей выглядит строго и лаконично. Изюминку его облику придает терраса, достаточно вместительная для того, чтобы разместить на ней летнюю кухню или зону отдыха на свежем воздухе. Попасть на террасу можно из гостиной. А главный вход в дом ведет с небольшого крыльца, расположенного с торца строения.
Внутренняя планировка продуманная, удобная. Котельная позволяет жить в доме круглый год. Совмещенный санузел достаточно вместителен для размещения там ванны. Гостиная совмещена с кухней, а просторная площадь позволяет выделить все необходимые зоны – приготовления пищи и столовую, отдыха и приема гостей. Проектом предусмотрены три спальни.
Почему стоит заказать у нас дом Матон
- постройка в разной комплектации;
- средний срок возведения – месяц;
- гарантия 10 лет;
- возвращение денег за каждый день просрочки;
- возможность строительства в кредит;
- акции и скидки.
Заказывая строительство каркасного дома Матон в компании «Канадская изба», вы получите дом мечты – быстро и качественно.
















