Мадрид 2
| Общая площадь | 95.3 м² |
| Размер дома | 7x9 м |
| Этажность | 2 эт |
| Спален | 2 |
| Санузлов | 2 |
| Утепление | 150мм |
| Срок возведения | 2 мес* |
- Комплектация
- Фундамент
|
Комплектация каркасного дома (можно вносить изменения по вашим пожеланиям) |
Внешний контур | Теплый контур | ЗИМА |
|---|---|---|---|
| Цена сейчас | 2 650 050 | 3 098 520 | 4 077 000 |
| Цена в ипотеку с эскроу-счетом | 3 047 557 | 3 563 298 | 4 688 550 |
| Фундамент
в подарок!
|
|||
| Забивные железобетонные сваи 150х150х3000 | |||
| Металлический оголовок, 250*250мм на каждую сваю | |||
| Гидроизоляция между сваей и обвязкой - рубероид | |||
| Цокольное перекрытие | |||
| Нижняя обвязка - Брус 150х150мм | |||
| Лаги пола - доска 50х200мм (камерной сушки) | |||
| Утепление - 200мм (минерало-ватный утеплитель) | |||
| Финишное покрытие - фанера 21мм | |||
| Несущие стены | |||
| Каркас внешних стен - 35х140мм камерной сушки, с шагом 580мм | |||
| Утепление плитное - 150мм (минерало-ватный утеплитель) | |||
| Внешняя отделка - имитация бруса | |||
| Внутренняя отделка - имитация бруса | |||
| Внутренние перегородки | |||
| Каркасные 35х90мм / 35х140мм камерной сушки (по проекту) | |||
| Утепление - 100мм / 150мм* минерало-ватный утеплитель (*по проекту) | |||
| Внутренняя отделка - имитация бруса (стены) | |||
| Высоты | |||
| Высота 1-го этажа - 2,5м | |||
| Высота 2-го этажа - 2,5м | |||
| Кровля | |||
| Стропило 45х190мм камерной сушки | |||
| Утепление - 200мм (минерало-ватный утеплитель) | |||
| Обрешетка - 20х90мм | |||
| Контр-обрешетка - 40х40мм по ветрогидроизоляции | |||
| МЕТАЛЛОЧЕРЕПИЦА 0.5мм (цвет на выбор)
в подарок!
|
|||
| Лестница чердачная DÖCKE / FACRO (при наличии ХЧП)*** |
|||
| Пленки | |||
| ИЗОСПАН AQ PROFF / KNAUF Extra (или аналоги) гидро-ветрозащитная паропроницаемая усиленная мембрана | |||
| ИЗОСПАН RS (или аналоги) / KNAUF Extra армированная паро-гидроизоляция | |||
| Проклейка пленок скотчем | |||
| Ревизионный люк на чердак | |||
| Окна
в подарок!
|
|||
| Оконные конструкции ПВХ (Rehau/Veka) | |||
| 2-х камерный стеклопакет (3 стекла)** | |||
| Цвет – белый | |||
| Установка водоотливов под окнами | |||
| Двери | |||
| Входная одностворчатая ПВХ с двухкамерным стеклопакетом | |||
| Межэтажная лестница | |||
| Двухмаршевая с точеными балясинами | |||
| Перила | |||
| Ступени готовые | |||
| Оплата | |||
Поэтапная:
|
|||
| Гарантия | |||
| 15 лет* (полное атисептирование каркаса) | |||
| Технический надзор | |||
| на протяжении всей стройки | |||
| Сборка и доставка | |||
| Сборка домокомплекта на участке | |||
| Доставка материала 100 км от МКАД | |||
| Разгрузка материала | |||
| Бытовка для проживания рабочих | |||
| Биотуалет для рабочих | |||
| Провекрка дома АэроОкном | |||
| * обязательным условием для получения гарантии 15 лет - оплата
полного атисептирования каркаса **количество камер стеклопакета, зависит от геометрии и параметров изделий ПВХ ***холодное чердачное помещение |
|||
«Мадрид 2» – дом, в котором уютно и тепло
При разработке проекта каркасного дома «Мадрид 2» архитекторы руководствовались прицепами создания энергоэффективных строений для холодных регионов и средиземноморскими традициями в дизайне.
Особенности дизайна и планировки
Внешний вид дома «Мадрид 2» отличается лаконичным дизайном с прямыми линиями без украшений. Строение выглядит привлекательным за счет сочетания изящества и простоты.
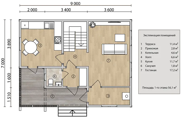
Размер здания – 7x9 м, площадь – 95.3 м². Дом – двухэтажный. Перед входом в дом расположена просторная терраса – 11 м². Она условно разделена на две зоны. В первой – находится парадная дверь и вход в котельную. Во второй – расположен отдельный вход на кухню.
Через входную дверь жильцы попадают в тамбур-прихожую, ведущего в санузел 1,8 м и холл – 6,6 м, совмещенный с гостиной 17,2 м. В холле находится дверь на кухню и лестница на второй этаж.
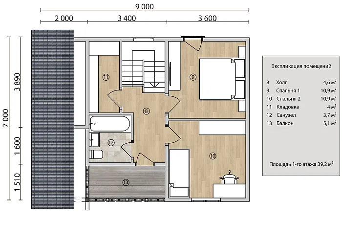
В мансарде находятся две просторные спальни и второй санузел, кладовка для хранения вещей.
Строим современное недорогое жилье
Компания «Канадская изба» с 2004 года занимается строительством каркасных домов. Мы гарантируем постройку здания под ключ в оговоренные сроки. При их срывах оплачиваем штрафы за каждый день просрочки.
Мы предлагаем недорогое, доступное и качественное жилье, оплатить постройку можно:
- в кредит;
- с помощью ипотеки;
- материнским капиталом.
Ежегодно мы строим более 300 домов и на каждый выдаем 10-летнюю гарантию.












