Коралл
| Общая площадь | 109.4 м² |
| Размер дома | 8x9 м |
| Этажность | 2 эт |
| Спален | 2 |
| Санузлов | 2 |
| Утепление | 150мм |
| Срок возведения | 2 мес* |
- Комплектация
- Фундамент
|
Комплектация каркасного дома (можно вносить изменения по вашим пожеланиям) |
Внешний контур | Теплый контур | ЗИМА |
|---|---|---|---|
| Цена сейчас | 2 754 700 | 3 220 880 | 4 238 000 |
| Цена в ипотеку с эскроу-счетом | 3 167 905 | 3 704 012 | 4 873 700 |
| Фундамент
в подарок!
|
|||
| Забивные железобетонные сваи 150х150х3000 | |||
| Металлический оголовок, 250*250мм на каждую сваю | |||
| Гидроизоляция между сваей и обвязкой - рубероид | |||
| Цокольное перекрытие | |||
| Нижняя обвязка - Брус 150х150мм | |||
| Лаги пола - доска 50х200мм (камерной сушки) | |||
| Утепление - 200мм (минерало-ватный утеплитель) | |||
| Финишное покрытие - фанера 21мм | |||
| Несущие стены | |||
| Каркас внешних стен - 35х140мм камерной сушки, с шагом 580мм | |||
| Утепление плитное - 150мм (минерало-ватный утеплитель) | |||
| Внешняя отделка - имитация бруса | |||
| Внутренняя отделка - имитация бруса | |||
| Внутренние перегородки | |||
| Каркасные 35х90мм / 35х140мм камерной сушки (по проекту) | |||
| Утепление - 100мм / 150мм* минерало-ватный утеплитель (*по проекту) | |||
| Внутренняя отделка - имитация бруса (стены) | |||
| Высоты | |||
| Высота 1-го этажа - 2,5м | |||
| Высота 2-го этажа - 2,5м | |||
| Кровля | |||
| Стропило 45х190мм камерной сушки | |||
| Утепление - 200мм (минерало-ватный утеплитель) | |||
| Обрешетка - 20х90мм | |||
| Контр-обрешетка - 40х40мм по ветрогидроизоляции | |||
| МЕТАЛЛОЧЕРЕПИЦА 0.5мм (цвет на выбор)
в подарок!
|
|||
| Лестница чердачная DÖCKE / FACRO (при наличии ХЧП)*** |
|||
| Пленки | |||
| ИЗОСПАН AQ PROFF / KNAUF Extra (или аналоги) гидро-ветрозащитная паропроницаемая усиленная мембрана | |||
| ИЗОСПАН RS (или аналоги) / KNAUF Extra армированная паро-гидроизоляция | |||
| Проклейка пленок скотчем | |||
| Ревизионный люк на чердак | |||
| Окна
в подарок!
|
|||
| Оконные конструкции ПВХ (Rehau/Veka) | |||
| 2-х камерный стеклопакет (3 стекла)** | |||
| Цвет – белый | |||
| Установка водоотливов под окнами | |||
| Двери | |||
| Входная одностворчатая ПВХ с двухкамерным стеклопакетом | |||
| Межэтажная лестница | |||
| Двухмаршевая с точеными балясинами | |||
| Перила | |||
| Ступени готовые | |||
| Оплата | |||
Поэтапная:
|
|||
| Гарантия | |||
| 15 лет* (полное атисептирование каркаса) | |||
| Технический надзор | |||
| на протяжении всей стройки | |||
| Сборка и доставка | |||
| Сборка домокомплекта на участке | |||
| Доставка материала 100 км от МКАД | |||
| Разгрузка материала | |||
| Бытовка для проживания рабочих | |||
| Биотуалет для рабочих | |||
| Провекрка дома АэроОкном | |||
| * обязательным условием для получения гарантии 15 лет - оплата
полного атисептирования каркаса **количество камер стеклопакета, зависит от геометрии и параметров изделий ПВХ ***холодное чердачное помещение |
|||
Каркасный дом «Коралл» не останется незамеченным среди тех, кто ищет какую-то изюминку, хочет получить уютное и необычное жилье ( дома из бруса от производителя).
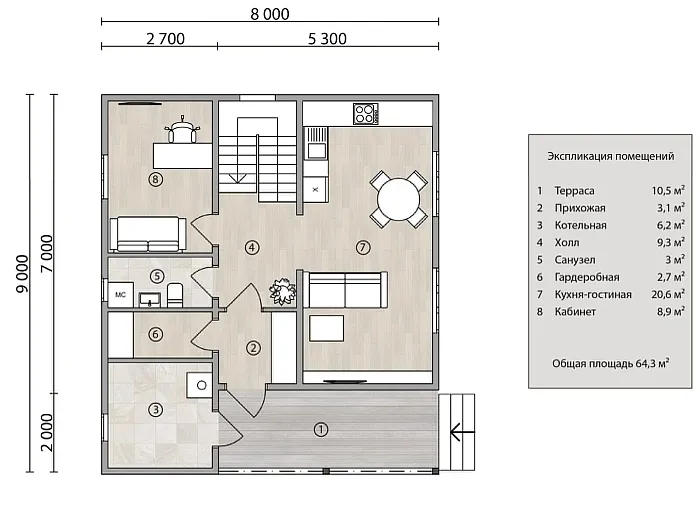
Особенность этого проекта – это двускатная асимметричная крыша, под которой располагается летняя терраса на 10,5 м2 с деревянными перилами. Здесь удобно отдыхать летом и любоваться окрестностями в осенние дни.
Почему лучше выбрать проект «Коралл»
Дом просторный, его площадь составляет 109,4 м2, при этом постройка слишком много места не потребует. Для возведения двухэтажного здания необходима площадка 8х9 м, а благодаря каркасной технологии получить такую симпатичную дачу или дом для постоянного проживания можно всего за 2 месяца. Наличие 2 спален и 2 санузлов делают его комфортным для семьи из 2-4 человек. За счет утепления и котельной, которая располагается на первом этаже, проект пригодится для любого климатического региона.
С террасы на первом этаже можно пройти в:
- котельную;
- прихожую;
- гардеробную;
- санузел.
Все вспомогательные помещения расположены компактно. Также на первом этаже находится холл на 9,3 м2 и вместительная гостиная, совмещенная с кухней, общей площадью в 20,6 м2. Здесь же есть кабинет в 8,9 м2, который легко переделать под еще одну спальню или гостевую комнату.
С холла на второй этаж ведет лестница. Его площадь 46,1 м2, он меньше первого. Лестница ведет в холл, из которого обеспечен доступ в санузел и две спальни. Они разного размера 22,8 и 11,5 м2.
Наша компании более 12 лет возводит дома различной сложности. К каждому проекту мы относимся с максимальной ответственностью, поэтому не только качественно выполняем работу, но и мониторим каждый этап, начиная от приема материалов и до отделочных работ. Поэтому обращаясь к нам, можно быть уверенным, что все будет выполнено на высшем уровне.
















