Континент
| Общая площадь | 115.1 м² |
| Размер дома | 10.5x8.2 м |
| Этажность | 2 эт |
| Спален | 3 |
| Санузлов | 1 |
| Утепление | 150мм |
| Срок возведения | 2 мес* |
- Комплектация
- Фундамент
|
Комплектация каркасного дома (можно вносить изменения по вашим пожеланиям) |
Внешний контур | Теплый контур | ЗИМА |
|---|---|---|---|
| Цена сейчас | 2 687 100 | 3 141 840 | 4 134 000 |
| Цена в ипотеку с эскроу-счетом | 3 090 165 | 3 613 116 | 4 754 100 |
| Фундамент
в подарок!
|
|||
| Забивные железобетонные сваи 150х150х3000 | |||
| Металлический оголовок, 250*250мм на каждую сваю | |||
| Гидроизоляция между сваей и обвязкой - рубероид | |||
| Цокольное перекрытие | |||
| Нижняя обвязка - Брус 150х150мм | |||
| Лаги пола - доска 50х200мм (камерной сушки) | |||
| Утепление - 200мм (минерало-ватный утеплитель) | |||
| Финишное покрытие - фанера 21мм | |||
| Несущие стены | |||
| Каркас внешних стен - 35х140мм камерной сушки, с шагом 580мм | |||
| Утепление плитное - 150мм (минерало-ватный утеплитель) | |||
| Внешняя отделка - имитация бруса | |||
| Внутренняя отделка - имитация бруса | |||
| Внутренние перегородки | |||
| Каркасные 35х90мм / 35х140мм камерной сушки (по проекту) | |||
| Утепление - 100мм / 150мм* минерало-ватный утеплитель (*по проекту) | |||
| Внутренняя отделка - имитация бруса (стены) | |||
| Высоты | |||
| Высота 1-го этажа - 2,5м | |||
| Высота 2-го этажа - 2,5м | |||
| Кровля | |||
| Стропило 45х190мм камерной сушки | |||
| Утепление - 200мм (минерало-ватный утеплитель) | |||
| Обрешетка - 20х90мм | |||
| Контр-обрешетка - 40х40мм по ветрогидроизоляции | |||
| МЕТАЛЛОЧЕРЕПИЦА 0.5мм (цвет на выбор)
в подарок!
|
|||
| Лестница чердачная DÖCKE / FACRO (при наличии ХЧП)*** |
|||
| Пленки | |||
| ИЗОСПАН AQ PROFF / KNAUF Extra (или аналоги) гидро-ветрозащитная паропроницаемая усиленная мембрана | |||
| ИЗОСПАН RS (или аналоги) / KNAUF Extra армированная паро-гидроизоляция | |||
| Проклейка пленок скотчем | |||
| Ревизионный люк на чердак | |||
| Окна
в подарок!
|
|||
| Оконные конструкции ПВХ (Rehau/Veka) | |||
| 2-х камерный стеклопакет (3 стекла)** | |||
| Цвет – белый | |||
| Установка водоотливов под окнами | |||
| Двери | |||
| Входная одностворчатая ПВХ с двухкамерным стеклопакетом | |||
| Межэтажная лестница | |||
| Двухмаршевая с точеными балясинами | |||
| Перила | |||
| Ступени готовые | |||
| Оплата | |||
Поэтапная:
|
|||
| Гарантия | |||
| 15 лет* (полное атисептирование каркаса) | |||
| Технический надзор | |||
| на протяжении всей стройки | |||
| Сборка и доставка | |||
| Сборка домокомплекта на участке | |||
| Доставка материала 100 км от МКАД | |||
| Разгрузка материала | |||
| Бытовка для проживания рабочих | |||
| Биотуалет для рабочих | |||
| Провекрка дома АэроОкном | |||
| * обязательным условием для получения гарантии 15 лет - оплата
полного атисептирования каркаса **количество камер стеклопакета, зависит от геометрии и параметров изделий ПВХ ***холодное чердачное помещение |
|||
Каркасный дом «Континент» – это один из популярных проектов «Канадской избы». При строительстве мы используем качественные материалы, поэтому дом станет вашим любимым местом жительства на долгие годы.
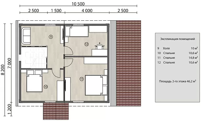
Планировка
Площадь дома составляет 115,1 м2, его размеры – 10,5x8,2 м. Межэтажное перекрытие оформлено обрезным брусом, усиленными лагами. Вход жилья имеет прихожую площадью – 6,4 м2 и просторный, функциональный холл – 9,2 м2.
Кухня (8 м2), гостиная (17,1 м2), санузел (6,8 м2) также расположены на первом этаже, общая площадь которого составляет 68,9 м2. Из кухни можно попасть на террасу. Ее протяженность захватывает всю стену, к которой прилегает кухня и гостиная.
Второй этаж, помимо 3 спален (две – по 10,6 м2 и одна – 14,8 м2), имеет большой холл площадью 10 м2. При желании его можно оформить как комнату отдыха или небольшой зал.
Сотрудничество с нами
Строительная компания «Канадская изба» уже 16 лет строит дома и бани любой сложности. Мы постоянно развиваемся и стремимся усовершенствовать работу наших мастеров.
Строительство каркасного дома «Континент» с нами гарантирует вам:
- качество и надежность конечного результата;
- своевременное завершение работ;
- контроль над строительством каждый день;
- возможность выбора способа оплаты (кредит, ипотека, материнский капитал).




















