Хома
| Общая площадь | 39.4 м² |
| Размер дома | 5.3x8.3 м |
| Этажность | 1 эт |
| Спален | 0 |
| Санузлов | 1 |
| Утепление | 150мм |
| Срок возведения | 1 мес* |
- Комплектация
- Фундамент
|
Комплектация каркасного дома (можно вносить изменения по вашим пожеланиям) |
Внешний контур | Теплый контур | ЗИМА |
|---|---|---|---|
| Цена сейчас | 1 443 640 | 1 698 400 | 2 123 000 |
| Цена в ипотеку с эскроу-счетом | 1 660 186 | 1 953 160 | 2 441 450 |
| Фундамент
в подарок!
|
|||
| Забивные железобетонные сваи 150х150х3000 | |||
| Металлический оголовок, 250*250мм на каждую сваю | |||
| Гидроизоляция между сваей и обвязкой - рубероид | |||
| Цокольное перекрытие | |||
| Нижняя обвязка - Брус 150х150мм | |||
| Лаги пола - доска 50х200мм (камерной сушки) | |||
| Утепление - 200мм (минерало-ватный утеплитель) | |||
| Финишное покрытие - фанера 21мм | |||
| Несущие стены | |||
| Каркас внешних стен - 35х140мм камерной сушки, с шагом 580мм | |||
| Утепление плитное - 150мм (минерало-ватный утеплитель) | |||
| Внешняя отделка - имитация бруса | |||
| Внутренняя отделка - имитация бруса | |||
| Внутренние перегородки | |||
| Каркасные 35х90мм / 35х140мм камерной сушки (по проекту) | |||
| Утепление - 100мм / 150мм* минерало-ватный утеплитель (*по проекту) | |||
| Внутренняя отделка - имитация бруса (стены) | |||
| Высоты | |||
| Высота 1-го этажа - 2,5м | |||
| Высота 2-го этажа - 2,5м | |||
| Кровля | |||
| Стропило 45х190мм камерной сушки | |||
| Утепление - 200мм (минерало-ватный утеплитель) | |||
| Обрешетка - 20х90мм | |||
| Контр-обрешетка - 40х40мм по ветрогидроизоляции | |||
| МЕТАЛЛОЧЕРЕПИЦА 0.5мм (цвет на выбор)
в подарок!
|
|||
| Лестница чердачная DÖCKE / FACRO (при наличии ХЧП)*** |
|||
| Пленки | |||
| ИЗОСПАН AQ PROFF / KNAUF Extra (или аналоги) гидро-ветрозащитная паропроницаемая усиленная мембрана | |||
| ИЗОСПАН RS (или аналоги) / KNAUF Extra армированная паро-гидроизоляция | |||
| Проклейка пленок скотчем | |||
| Ревизионный люк на чердак | |||
| Окна
в подарок!
|
|||
| Оконные конструкции ПВХ (Rehau/Veka) | |||
| 2-х камерный стеклопакет (3 стекла)** | |||
| Цвет – белый | |||
| Установка водоотливов под окнами | |||
| Двери | |||
| Входная одностворчатая ПВХ с двухкамерным стеклопакетом | |||
| Оплата | |||
Поэтапная:
|
|||
| Гарантия | |||
| 15 лет* (полное атисептирование каркаса) | |||
| Технический надзор | |||
| на протяжении всей стройки | |||
| Сборка и доставка | |||
| Сборка домокомплекта на участке | |||
| Доставка материала 100 км от МКАД | |||
| Разгрузка материала | |||
| Бытовка для проживания рабочих | |||
| Биотуалет для рабочих | |||
| Провекрка дома АэроОкном | |||
| * обязательным условием для получения гарантии 15 лет - оплата
полного атисептирования каркаса **количество камер стеклопакета, зависит от геометрии и параметров изделий ПВХ ***холодное чердачное помещение |
|||
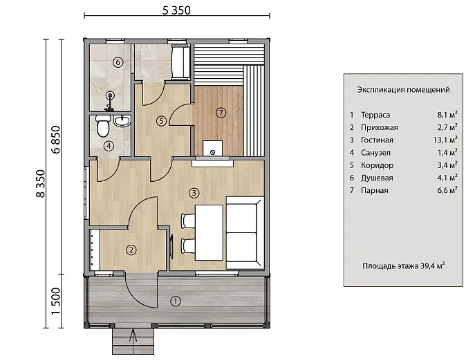
Компания «Канадская изба» представляет проект одноэтажного каркасного дома «Хома» для приусадебного хозяйства или дачи. Несмотря на компактные размеры строения, наши архитекторы предусмотрели все необходимое для комфортного пребывания в нем. Такой вариант подойдет тем, кто желает на участке построить дополнительный дом для гостей.
Особенности внутреннего пространства и внешнего вида
Уютный дом площадью 39,4 м2 вмещает в себя прихожую (2,7 м2), просторную гостиную (13,1 м2), санузел (1,4 м2). Также предусмотрен небольшой коридор, ведущий в банный мини-комплекс, который состоит из душевой и парной. Гостиную при необходимости можно превратить в спальню для размещения гостей на ночь.
Планировкой дома предусмотрена терраса для дома из бруса, выполняющая роль дополнительной зоны для отдыха на открытом воздухе. Само строение имеет правильную лаконичную форму, при этом оно конструктивно надежно и практично. В этом доме не чувствуешь себя ущемленным ни в комфорте, ни в функциональности.
4 причины обратиться в нашу компанию
- Солидный опыт предоставления различных услуг по строительству домов.
- Строгое соблюдение технологий и сроков изготовления.
- Экспертная оценка и подбор качественных материалов по оптимальной стоимости.
- Возможность использования средств материнского капитала на постройку жилья.
Компания «Канадская изба» вместе с вами пройдет путь от исходной идеи до ее логического завершения. Получить консультацию можно по телефону 8 (495) 966-41-46.












