Форли
| Общая площадь | 184 м² |
| Размер дома | 11.5x13 м |
| Этажность | 2 эт |
| Спален | 4 |
| Санузлов | 3 |
| Утепление | 150мм |
| Срок возведения | 3 мес* |
- Комплектация
- Фундамент
|
Комплектация каркасного дома (можно вносить изменения по вашим пожеланиям) |
Внешний контур | Теплый контур | ЗИМА |
|---|---|---|---|
| Цена сейчас | 4 050 800 | 4 736 320 | 6 232 000 |
| Цена в ипотеку с эскроу-счетом | 4 658 420 | 5 446 768 | 7 166 800 |
| Фундамент
в подарок!
|
|||
| Забивные железобетонные сваи 150х150х3000 | |||
| Металлический оголовок, 250*250мм на каждую сваю | |||
| Гидроизоляция между сваей и обвязкой - рубероид | |||
| Цокольное перекрытие | |||
| Нижняя обвязка - Брус 150х150мм | |||
| Лаги пола - доска 50х200мм (камерной сушки) | |||
| Утепление - 200мм (минерало-ватный утеплитель) | |||
| Финишное покрытие - фанера 21мм | |||
| Несущие стены | |||
| Каркас внешних стен - 35х140мм камерной сушки, с шагом 580мм | |||
| Утепление плитное - 150мм (минерало-ватный утеплитель) | |||
| Внешняя отделка - имитация бруса | |||
| Внутренняя отделка - имитация бруса | |||
| Внутренние перегородки | |||
| Каркасные 35х90мм / 35х140мм камерной сушки (по проекту) | |||
| Утепление - 100мм / 150мм* минерало-ватный утеплитель (*по проекту) | |||
| Внутренняя отделка - имитация бруса (стены) | |||
| Высоты | |||
| Высота 1-го этажа - 2,5м | |||
| Высота 2-го этажа - 2,5м | |||
| Кровля | |||
| Стропило 45х190мм камерной сушки | |||
| Утепление - 200мм (минерало-ватный утеплитель) | |||
| Обрешетка - 20х90мм | |||
| Контр-обрешетка - 40х40мм по ветрогидроизоляции | |||
| МЕТАЛЛОЧЕРЕПИЦА 0.5мм (цвет на выбор)
в подарок!
|
|||
| Лестница чердачная DÖCKE / FACRO (при наличии ХЧП)*** |
|||
| Пленки | |||
| ИЗОСПАН AQ PROFF / KNAUF Extra (или аналоги) гидро-ветрозащитная паропроницаемая усиленная мембрана | |||
| ИЗОСПАН RS (или аналоги) / KNAUF Extra армированная паро-гидроизоляция | |||
| Проклейка пленок скотчем | |||
| Ревизионный люк на чердак | |||
| Окна
в подарок!
|
|||
| Оконные конструкции ПВХ (Rehau/Veka) | |||
| 2-х камерный стеклопакет (3 стекла)** | |||
| Цвет – белый | |||
| Установка водоотливов под окнами | |||
| Двери | |||
| Входная одностворчатая ПВХ с двухкамерным стеклопакетом | |||
| Межэтажная лестница | |||
| Двухмаршевая с точеными балясинами | |||
| Перила | |||
| Ступени готовые | |||
| Оплата | |||
Поэтапная:
|
|||
| Гарантия | |||
| 15 лет* (полное атисептирование каркаса) | |||
| Технический надзор | |||
| на протяжении всей стройки | |||
| Сборка и доставка | |||
| Сборка домокомплекта на участке | |||
| Доставка материала 100 км от МКАД | |||
| Разгрузка материала | |||
| Бытовка для проживания рабочих | |||
| Биотуалет для рабочих | |||
| Провекрка дома АэроОкном | |||
| * обязательным условием для получения гарантии 15 лет - оплата
полного атисептирования каркаса **количество камер стеклопакета, зависит от геометрии и параметров изделий ПВХ ***холодное чердачное помещение |
|||
Каркасный дом «Форли» – один из востребованных клиентами проектов «Канадской избы». При его возведении применяются лучшие материалы, работы выполняют только квалифицированные строители.
Планировка
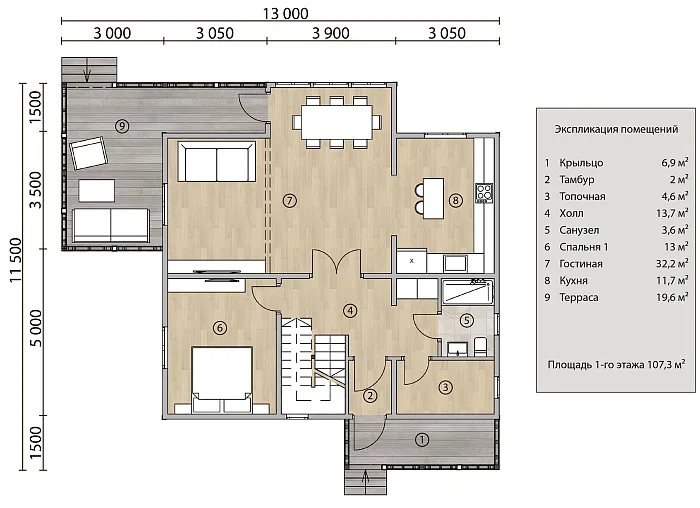
Общая площадь 2-этажной постройки 184м², ее размеры 11.5x13 м². Вход в жилище через крыльцо (6.9м²) и 2-метровый тамбур, переходящий в просторный холл (13.7м²). Другие дома под усадку 150х150 с планировкой
Первый этаж
Площадь первого уровня жилища 107,3м². Согласно плану из холла предусмотрен проход в просторную, разделенную на зоны гостиную (32.2 м²), оттуда легко попасть в уютную функциональную кухню (11.7м²) и на большую террасу (19,6м²). Из холла также предусмотрен вход в 13-метровую спальню, малый санузел (3.6м²) и хозяйственное (топочное) отделение (4.6м²).
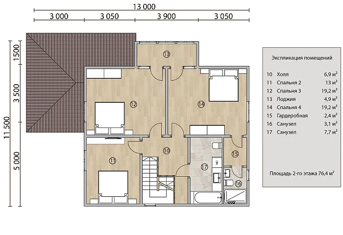
Второй этаж
Поднявшись по лестнице на верхний уровень дома (76.4м²) оказываемся в холле, ведущем в большой санузел (7.7 м²) и три спальни, две из которых размером 19.2м² имеют выход на лоджию (4.9м²). Из одной спальни, минуя гардеробную, можно пройти в малый санузел (3.1м²). Через лестничный проем от этого помещения —13-метровая спальня.
Строим с нами!
Заключение договора о возведении коттеджа «Форли» в нашей фирме обеспечит клиенту:
- отменное качество работ, срок строительства – 1 квартал;
- получение жилья точно в указанный договором срок;
- отсутствие проволочек и брака;
- возможность выбрать удобную форму расчета.
Такой коттедж непременно станет любимым семейным гнездышком.












