Баден
| Общая площадь | 155 м² |
| Размер дома | 9x12.5 м |
| Этажность | 2 эт |
| Спален | 3 |
| Санузлов | 2 |
| Утепление | 150мм |
| Срок возведения | 3 мес* |
- Комплектация
- Фундамент
|
Комплектация каркасного дома (можно вносить изменения по вашим пожеланиям) |
Внешний контур | Теплый контур | ЗИМА |
|---|---|---|---|
| Цена сейчас | 3 675 100 | 4 297 040 | 5 654 000 |
| Цена в ипотеку с эскроу-счетом | 4 226 365 | 4 941 596 | 6 502 100 |
| Фундамент
в подарок!
|
|||
| Забивные железобетонные сваи 150х150х3000 | |||
| Металлический оголовок, 250*250мм на каждую сваю | |||
| Гидроизоляция между сваей и обвязкой - рубероид | |||
| Цокольное перекрытие | |||
| Нижняя обвязка - Брус 150х150мм | |||
| Лаги пола - доска 50х200мм (камерной сушки) | |||
| Утепление - 200мм (минерало-ватный утеплитель) | |||
| Финишное покрытие - фанера 21мм | |||
| Несущие стены | |||
| Каркас внешних стен - 35х140мм камерной сушки, с шагом 580мм | |||
| Утепление плитное - 150мм (минерало-ватный утеплитель) | |||
| Внешняя отделка - имитация бруса | |||
| Внутренняя отделка - имитация бруса | |||
| Внутренние перегородки | |||
| Каркасные 35х90мм / 35х140мм камерной сушки (по проекту) | |||
| Утепление - 100мм / 150мм* минерало-ватный утеплитель (*по проекту) | |||
| Внутренняя отделка - имитация бруса (стены) | |||
| Высоты | |||
| Высота 1-го этажа - 2,5м | |||
| Высота 2-го этажа - 2,5м | |||
| Кровля | |||
| Стропило 45х190мм камерной сушки | |||
| Утепление - 200мм (минерало-ватный утеплитель) | |||
| Обрешетка - 20х90мм | |||
| Контр-обрешетка - 40х40мм по ветрогидроизоляции | |||
| МЕТАЛЛОЧЕРЕПИЦА 0.5мм (цвет на выбор)
в подарок!
|
|||
| Лестница чердачная DÖCKE / FACRO (при наличии ХЧП)*** |
|||
| Пленки | |||
| ИЗОСПАН AQ PROFF / KNAUF Extra (или аналоги) гидро-ветрозащитная паропроницаемая усиленная мембрана | |||
| ИЗОСПАН RS (или аналоги) / KNAUF Extra армированная паро-гидроизоляция | |||
| Проклейка пленок скотчем | |||
| Ревизионный люк на чердак | |||
| Окна
в подарок!
|
|||
| Оконные конструкции ПВХ (Rehau/Veka) | |||
| 2-х камерный стеклопакет (3 стекла)** | |||
| Цвет – белый | |||
| Установка водоотливов под окнами | |||
| Двери | |||
| Входная одностворчатая ПВХ с двухкамерным стеклопакетом | |||
| Межэтажная лестница | |||
| Двухмаршевая с точеными балясинами | |||
| Перила | |||
| Ступени готовые | |||
| Оплата | |||
Поэтапная:
|
|||
| Гарантия | |||
| 15 лет* (полное атисептирование каркаса) | |||
| Технический надзор | |||
| на протяжении всей стройки | |||
| Сборка и доставка | |||
| Сборка домокомплекта на участке | |||
| Доставка материала 100 км от МКАД | |||
| Разгрузка материала | |||
| Бытовка для проживания рабочих | |||
| Биотуалет для рабочих | |||
| Провекрка дома АэроОкном | |||
| * обязательным условием для получения гарантии 15 лет - оплата
полного атисептирования каркаса **количество камер стеклопакета, зависит от геометрии и параметров изделий ПВХ ***холодное чердачное помещение |
|||
Проект современного дома Баден
Деревянные постройки из профилированного бруса, которые предлагает компания «Канадский дом», возводят из готовых каркасов, поэтому срок строительства минимальный.
Конструкция каркасного дома Баден
Двухэтажный дом с панорамным стеклянным фасадом. План 9Х12,5 м, общая площадь 155 кв. м. Двускатная крыша с одной стороны образует навес над открытой верандой без ограждения.
Несущие стены выполнены из профилированного бруса. Толщина стен с утеплением – 100 мм, что в зимние месяцы приведет к существенной экономии на обогреве.
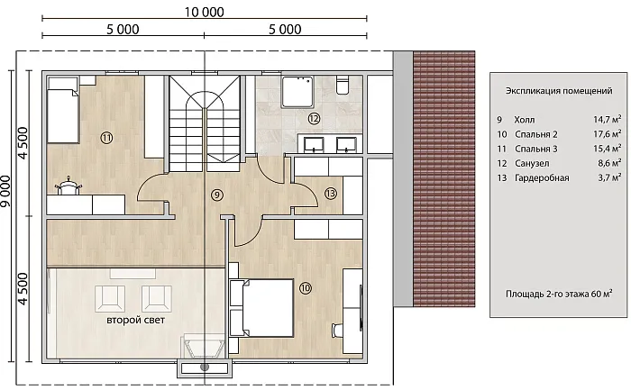
С веранды вход ведет в небольшую прихожую, оттуда в кухню. Передняя стена просторной гостиной состоит из панорамных окон. Сюда ведет отдельная дверь. На первом этаже санузел для гостей. Классическая лестница ведет на второй этаж, где располагаются три отдельные спальни и второй санузел.
Несмотря на скошенную крышу, высота спален не менее 2,5 метров. Окна в пол имитируют стеклопакет, хотя изготовлены из дерева. Они ярко освещают помещения, отделанные изнутри вагонкой, создающей впечатление альпийского шале. Пол застелен шпунтованной доской.
Почему обращаются к нам
Плотники компании «Канадская изба» настоящие виртуозы по дереву. Каждый проект каркасного дома тщательно рассчитан и выверен, а мастера на площадке сродни зодчим, которые чувствуют творение сердцем.
Заказывая у нас постройку, вы получите:
- Готовый дом под ключ.
- Оригинальное решение планировки.
- Экологичные материалы.
- Срок сборки и сдачи проекта не более трех месяцев.
Также ищите акции на сайте.












