ОЦБ 6
| Общая площадь | 35 м² |
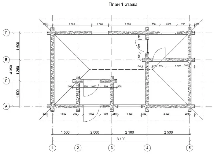
| Размер дома | 4.35x8.1 м |
| Этажность | 1 эт |
| Спален | 1 |
| Санузлов | 1 |
- Комплектация
- Фундамент
| Проектная документация |
|
| Стеновой комплект |
|
| Кровля |
|
| Доставка до Вашего участка | |
| Монтаж-сборка квалифицированной бригадой | |
| Гарантия от производителя | |
| Поэтапная оплата. Возможность льготного кредитования. | |
Дом, построенный по проекту ОЦБ 6, является примером недорогого и уютного дачного домика ( дом из рубленного бревна) площадью всего 35 м². Размер дома составляет 4,35х8,1 м, благодаря чему он не занимает много места на небольшом участке, однако оснащен всем необходимым для проживания в летний период.
Особенности домов ОЦБ 6
Дома по проекту ОЦБ 6 строятся из оцилиндрованного бревна диаметром от 200 мм до 280 мм, при этом на объект материал доставляется с уже зарезанными чашками, что существенно ускоряет монтаж. Несмотря на компактные размеры, внутри здания находится гостиная, а также спальня, совмещенный санузел и прихожая. К преимуществам такого дома относятся такие характеристики:
- Устойчивость к влаге.
- Благодаря специальной обработке бревна не поддаются гниению, повреждению паразитами, на них не образуется грибок или плесень.
- Возможность не применять дополнительных материалов для внутренней и наружной отделки.
Скорость строительства дома по такому проекту составляет обычно не более 2-3-х недель.
Наши преимущества
Наша компания предоставляет весь перечень услуг по строительству домов, включающий разработку плана фундамента, согласование с заказчиком всех нюансов, доставку материалов на участок, возведение здания и сдачу его в эксплуатацию.








