Журавль
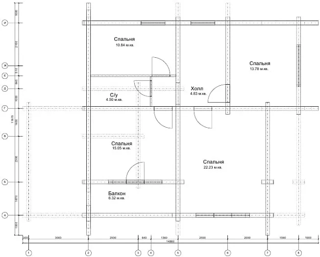
| Общая площадь | 200 м² |
| Размер дома | 11.7x14.9 м |
| Этажность | 2 эт |
| Спален | 4 |
| Санузлов | 2 |
- Комплектация
- Фундамент
В систему "Дом под отделку" входит
Организация проживания рабочих (доставка бытовки на объект с подключением к электросети, предоставленной заказчиком)
Организация видеотрансляции со строительной площадки для удаленного контроля за монтажом.
Монтаж.
Все расходные и сопутствующие материалы необходимые для возведения домокомплекта.
Технический надзор, с поэтапной приемкой работ.
Комплект документов для регистрационных действий.
Гарантия
5**
Фундамент монолитно-ростверковый с буронабивными сваями
Геодезические работы: разбивка осей, нивелировка.
Буронабивные сваи на глубину промерзания. Диаметр: 0,2 м.
Ростверк (лента) 0,300×0,400.
Арматура 12 мм.
Бетон М-350 (Б25) сертифицированный.
Виброусадка.
Загиб арматуры по углам, использование технологии вязки.
Гидроизоляция «Гидростеклоизол» сверху.
Подсыпка 200 мм (песчаная подушка с трамбовкой) под ростверком.
Стеновой комплект
Брус клееный профилированный по проекту запиленный в чашу.
Сечение бруса 160×145 с возможностью увеличения (доп.опция)
Немецкий профиль бруса.
Металлические стержни (шпильки), гайки, шайбы, Льноджутовая лента для герметизации чашек.
Балки — из сухого строганного бруса 95х195 , с пропиткой антисептиком.
Лестница
Лестница межэтажная строительная однопролетная, хвоя.
Входная дверь
Металлическая с сейфовым замком (1 шт.).
Кровля
Металлочерепица с полимерным покрытием (цвет на выбор).
Стропильная система — сухая, строганная доска 45х195 обработанная огнебиозащитным составом.
Двойная обрешетка вентилируемой кровли.
Брусок сухой строганный.
Утепление кровли 200 мм.
Пароизоляция мембранного типа.
Водосточная система.
Мансардные окна (согласно проекту).
Проходные элементы для вентиляции.
Подшивка свесов кровли вентилируемой доской.
Пластиковые окна
Наличники снаружи.
Двухкамерный энергосберегающий стеклопакет i-стекло (формула 4-14-4-14-4 ).
Балконные двери.
Москитные сетки на поворотно-откидных створках.
Гребенки.
Электрика
Скрытая электрическая проводка системы электроснабжения.
Кабель BBГ нг-LS негорючий - самозатухающий сертифицированный.
Гофрорукав из ПВХ.
Инженерные системы
Скрытая разводка системы водоснабжения.
Скрытая разводка системы канализации.
Подготовка системы отопления.
* Не является публичной офертой.
** Условия Гарантии уточняйте у менеджеров в офисах продаж.






































