Амбарио
| Общая площадь | 202.9 м² |
| Размер дома | 13.5x11 м |
| Этажность | 2 эт |
| Спален | 4 |
| Санузлов | 2 |
- Комплектация
- Фундамент
Компания «Канадская изба» предлагает проект каркасного дома «Амбарио». При его разработке учитывались современные тенденции в архитектуре и планировочных решениях.
Внешний вид и планировка
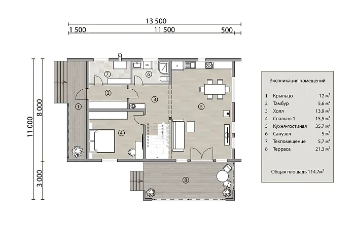
Полезная площадь дома 202,9 кв.м., размеры в плане 13,5х11 м. Дом двухэтажный, второй этаж – мансардного типа. На втором этаже балкон (8х1,5) с парапетом из закаленного стекла.
Вход в дом с крыльца (1,5х8) с широкой лестницей без перил. Из тамбура вход в техническое помещение (5,7 кв.м.) и холл (13,9 кв.м.). Холл через широкую арку объединен с кухней-гостиной (35,7 кв.м.), из которой есть выход на террасу (21.3 кв.м.). Рядом с лестницей на второй этаж располагается спальная комната (15,5 кв.м.).
Холл второго этажа (8,2) открывает доступ к трем спальным комнатам, в кабинет (10,8) и санузел. Кабинет и большая спальная комната (18,9) имеют выходы на балкон.
Почему заказывают дома у нас
Нашу компанию выбирают по следующим причинам:
- низкая цена;
- возможность поэтапной оплаты;
- технический надзор за соблюдением используемых технологий;
- гарантия качества;
- соблюдение утвержденного графика работ.
При возведении дома используются сертифицированные строительные и отделочные материалы.










